$625,000
$625,000
For more information regarding the value of a property, please contact us for a free consultation.
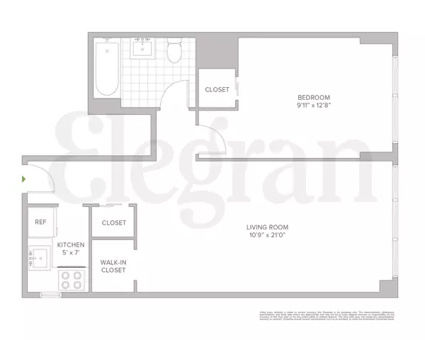
1 Bed
1 Bath
SOLD DATE : 06/23/2022
Key Details
Sold Price $625,000
Property Type Co-op
Sub Type coops
Listing Status Sold
Purchase Type For Sale
Subdivision Upper West Side
MLS Listing ID RLS10778622
Sold Date 06/23/22
Bedrooms 1
Full Baths 1
HOA Fees $1,184
HOA Y/N Yes
Year Built 1964
Property Sub-Type coops
Property Description
Sponsor Unit No board approval necessary!
Renovated unit with Northern skyline views. Two oversized windows allow great light into the apartment. Separate windowed kitchen has granite counter-tops, new stylish cabinetry, stainless steel full-sized refrigerator and stove. This Upper West Side apartment features hardwood floors and amble closet space.
Your home literally steps away from the gorgeous Riverside Park, the subway and all the conveniences of Broadway.
Pet-friendly post-war co-op building with a part-time doorman (4pm 12am, 7 days a week). Roof deck, two elevators, renovated lobby, central laundry room and live-in super.
Location
State NY
County New York
Building Detail https://www.elegran.com/nyc/buildings/park-view-towers?sold-listing=true
Interior
Interior Features Entrance Foyer
Fireplace No
Laundry Building Washer Dryer Install Allowed, Common Area
Exterior
Exterior Feature Building Roof Deck
Private Pool No
Building
Story 13
New Construction No
Others
Pets Allowed Pets Allowed
Ownership Stock Cooperative
Monthly Total Fees $1, 184
Pets Allowed Building Yes, Yes
Read Less Info
Want to know what your home might be worth? Contact us for a FREE valuation!

Our team is ready to help you sell your home for the highest possible price ASAP

RLS Data display by Elegran Real Estate
Nearby Schools & Businesses
GET MORE INFORMATION



